Meloenstraat

2564TB Den haag

€ 675.000

ruler icon 120 m²

ruler icon 4 kamers

Omschrijving

**ENGLISH VERSION BELOW

WOW! Waanzinnige eengezinswoning met heerlijke ZONNIGE voor-en achtertuin, VERANDA, LUXE open keuken, 2 zeer ruime slaapkamers op de eerste verdieping (voorheen 3) met ruime moderne badkamer, zonnig balkon, en als echte EYECATCHER de tweede verdieping die is omgetoverd tot een luxe LOFT met masterbedroom en luxe open badkamer voorzien van airco!

De woning is gelegen in de gezellige Vruchtenbuurt en is door de perfecte staat van onderhoud direct te betrekken! De gehele woning is voorzien van dubbelglas en beschikt over 7 zonnepanelen, de woning is gelegen op erfpachtgrond waarvan de canon eeuwigdurend is afgekocht!

Al uw dagelijkse voorzieningen vindt u dichtbij: winkelcentra, sportverenigingen, bos, duinen, strand en openbaar vervoer. De woning ligt op fietsafstand van de Internationale school en de Europese school!

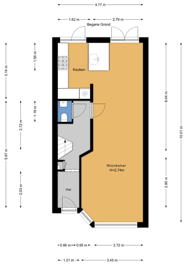
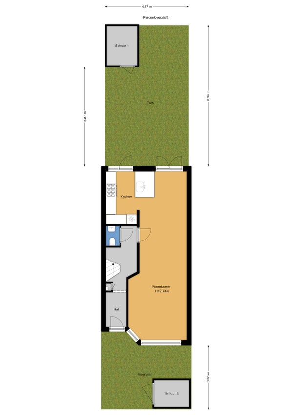
Indeling: voortuin met terras en schuur met plek voor fietsen en scooter. Entree woning, tochthal met granitovloer, gang met meterkast, toilet met fontein en een handige bergkast onder de trap. Via deur met glas-in-lood ramen toegang naar de ruime en lichte woon- en eetkamer voorzien van mooie visgraat PVC-vloer. Voorkamer voorzien van gezellige erker en gashaard. Luxe open woonkeuken gelegen aan de achterzijde met spoeleiland met Quooker, vaatwasser, wijnkoelkast en een gezellige bar om aan te zitten. Verder is de keuken voorzien van een composiet aanrechtblad, diverse luxe apparatuur zoals een fraai BORETTI gasfornuis met 6 pitten en een grote oven, een koel-vriescombinatie, afzuigkap en magnetron. Via openslaande deuren aan de achterzijde toegang tot de ruime achtertuin waar je kunt genieten van de middag- en avondzon. De tuin beschikt over een gezellige veranda en een schuur voor voldoende opbergruimte.

Op de eerste etage bevinden zich 2 zeer ruime slaapkamers met de mogelijkheid tot het creëren van een derde. De slaapkamer aan de achterzijde geeft toegang tot het balkon gelegen over de gehele breedte. Moderne badkamer voorzien van zeer ruime inloopdouche, dubbel wastafelmeubel, vloerverwarming en een handdoekradiator en op de gang een tweede toilet met fontein.

Op de tweede etage bevindt zich de mooie masterbedroom voorzien van inbouwkasten met aansluitend open luxe badkamer met vrijstaand bad, dubbel wastafelmeubel, een zeer ruime inloopdouche, designradiator en airco.

Via de overloop toegang tot de wasruimte met dakraam en CV opstelplaats. Ruime vliering met bergruimte toegankelijk vanaf de overloop.

Bijzonderheden:

Bouwjaar 1930
Gelegen op erfpachtgrond waarvan de canon eeuwigdurend is afgekocht
Woonoppervlakte ca. 120m2 conform NEN2580
3 zeer ruime slaapkamers met de mogelijkheid tot het creëren van een extra slaapkamer
2 luxe badkamers
Zolderverdieping voorzien van airco
Energielabel ‘C’
7 zonnepanelen op het dak
Volledig voorzien van kunststofkozijnen met dubbelglas
Elektrische markiezen voorzijde woning
Oplevering in overleg
Ouderdomsclausule en materialen clausule van toepassing

Deze informatie is door ons met de nodige zorgvuldigheid samengesteld. Onzerzijds wordt echter geen enkele aansprakelijkheid aanvaard voor enige onvolledigheid, onjuistheid of anderszins, dan wel de gevolgen daarvan. Alle opgegeven maten en oppervlakten zijn indicatief. Dit alles onder voorbehoud van wijzigingen en/of eventuele drukfouten.

**

WOW! Amazing family home with lovely SUNNY front and back garden, VERANDA, LUXURY open kitchen, 2 very spacious bedrooms on the first floor (previously 3) with spacious modern bathroom, sunny balcony, and as a real EYECATCHER, the second floor that has been transformed into a luxurious LOFT with master bedroom and luxurious open bathroom with air conditioning!

The house is located in the cozy Vruchtenbuurt and can be occupied immediately due to its perfect state of maintenance! The entire house is equipped with double glazing and has 7 solar panels, the house is located on leasehold land of which the canon has been bought off forever!

All your daily amenities can be found close by: shopping centers, sports clubs, forests, dunes, beach and public transport. The house is within cycling distance of the International School and the European School!

Layout: front garden with terrace and shed with space for bicycles and scooter. Entrance of the house, hall with granite floor, hallway with meter cupboard, toilet with fountain and a handy storage cupboard under the stairs. Access to the spacious and bright living and dining room via a door with stained glass windows with a beautiful herringbone PVC floor. Front room with cozy bay window and gas fireplace. Luxury open kitchen located at the rear with a sink island with Quooker, dishwasher, wine refrigerator and a cozy bar to sit at. Furthermore, the kitchen is equipped with a composite worktop, various luxury appliances such as a beautiful gas stove from ‘Boretti’ with 6 burners and a large oven, a fridge-freezer combination, extractor hood and microwave. French doors at the rear provide access to the spacious backyard where you can enjoy the afternoon and evening sun. The garden has a cozy veranda and a shed for sufficient storage space.

On the first floor there are 2 very spacious bedrooms with the possibility of creating a third. The bedroom at the rear gives access to the balcony spanning the entire width. Modern bathroom with a very spacious walk-in shower, double washbasin, underfloor heating and a towel radiator and a second toilet with fountain in the hallway.

On the second floor is the beautiful master bedroom with fitted wardrobes followed by an open luxury bathroom with freestanding bath, double washbasin, a very spacious walk-in shower, design radiator and air conditioning.

Via the landing access to the laundry room with skylight and central heating installation. Spacious attic with storage space accessible from the landing.

Particularities:

Year of construction 1930
Located on leasehold land of which the canon has been bought off perpetually
Living area approx. 120m2 in accordance with NEN2580
3 very spacious bedrooms with the possibility of creating an extra bedroom
2 luxurious bathrooms
Attic floor with air conditioning
Energy label ‘C’
7 solar panels on the roof
Fully equipped with plastic frames with double glazing
Electric awnings at the front of the house
Delivery in consultation
Age clause and materials clause apply

This information has been compiled by us with due care. However, no liability is accepted on our part for any incompleteness, inaccuracy or otherwise, or the consequences thereof. All specified sizes and surfaces are indicative. All this is subject to changes and/or possible printing errors.

Kenmerken

Overdracht

Vraagprijs

€ 675.000

Aangeboden sinds

30-11--0001

Status

Verkocht

Aanvaarding

Per datum

Bouw

Soort

Woonhuis, Eengezinswoning, Tussenwoning

Soort bouw

Bestaande bouw

Bouwjaar

1930

Oppervlakte & inhoud

Wonen

120 m²

Perceel

115 m²

Inhoud

415 m²

Indeling

Aantal kamers

4

Aantal badkamers

2

Badkamervoorzieningen

Dubbele wastafel, vloerverwarming geheel, inloopdouche, wastafelmeubel

Aantal woonlagen

4

Voorzieningen

Tv kabel, internet, buitenzonwering, dakraam

Energie

Energielabel

C

Buitenruimte

Ligging

Aan rustige weg, in woonwijk

Ligging tuin

Noordwest

Bergruimte

Soort

Vrijstaand hout