Ampu00e8restraat

2563ZP Den haag

€ 335.000

ruler icon 85 m²

ruler icon 3 kamers

Omschrijving

**ENGLISH VERSION BELOW

Wonen wordt genieten in dit zeer charmante TOP-appartement (ca.85m2) gelegen in het populaire Valkenboskwartier!

Uitstekend onderhouden appartement gelegen op de tweede etage voorzien van 2 ruime slaapkamers en een heerlijk balkon. Op deze geweldige locatie zijn er oneindig veel mogelijkheden om je buiten de deur te vermaken.

In de buurt bevinden zich diverse winkelstraten, denk hierbij aan de Fahrenheitstraat en Regentesseplein. Genoeg keuze aan gezellige restaurants, hippe barretjes, knusse boetiekjes en charmante delicatessenwinkels dus! Diverse sportfaciliteiten, scholen en het openbaar vervoer (tram 3, centrum) zijn op loopafstand gelegen, wel zo handig!

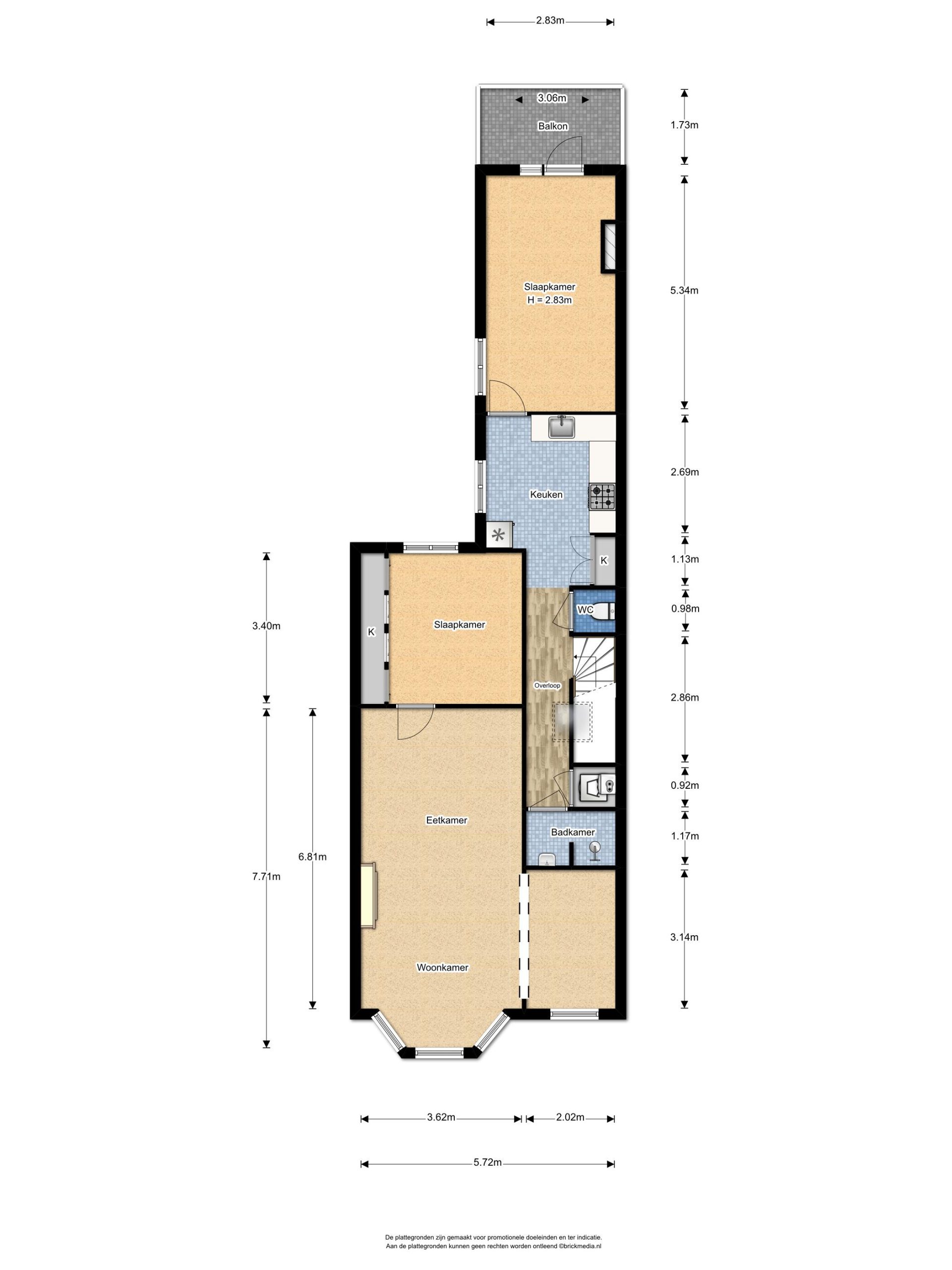
Indeling:

Open ‘Haags’ portiek met brede trap naar de eerste etage. Entree appartement, hal met meterkast en binnentrap naar de topetage met lichtkoepel. Ruime lichte overloop met bergkast met wasmachineaansluiting. Toegang tot toilet, woon-eetkamer, moderne badkamer (welke is voorzien van een douche, wastafelmeubel en spiegel). Toegang tot de L-vorm woon/eetkamer met zeer veel daglichttoetreding mede dankzij de authentieke erker. Via de woonkamer toegang tot de slaapkamer (3.40 x 3.62). De keuken is aan de rechterzijde van het appartement gelegen en is voorzien van een aansluiting voor een vaatwasser, oven, 4-pits gasfornuis, koel-vries combinatie. Ruime tweede slaapkamer gelegen aan de achterzijde met toegang tot het balkon. Tot slot is het gehele appartement voorzien van een laminaatvloer.

Kortom een heerlijk appartement om direct te betrekken!

Bijzonderheden:

Gelegen op eigen grond
Woonoppervlakte ca. 85m2
Bouwjaar 1913
Geheel voorzien van dubbel glas in kunststof en houten kozijnen
Houten kozijnen en erker recent geschilderd
Dak vernieuwd en geïsoleerd in 2014
CV combiketel HR 2010
Actieve VvE, 1/3e aandeel bijdrage € 90,- p.m.
Nieuw MJOP opgesteld in 2024
Perfecte locatie t.o.v. openbaar vervoer, winkels, strand en scholen
Oplevering kan snel
Gezien het bouwjaar van de woning zal de ouderdoms- en materialenclausule in de koopakte worden opgenomen.

Deze informatie is door ons met de nodige zorgvuldigheid samengesteld. Onzerzijds wordt echter geen enkele aansprakelijkheid aanvaard voor enige onvolledigheid, onjuistheid of anderszins, dan wel de gevolgen daarvan. Alle opgegeven maten en oppervlakten zijn indicatief. Dit alles onder voorbehoud van wijzigingen en/of eventuele drukfouten.

*****

Living is a pleasure in this very charming TOP apartment (approx. 85m2) located in the popular Valkenboskwartier!

Excellently maintained apartment located on the second floor with 2 spacious bedrooms and a lovely balcony. At this great location there are endless possibilities to have fun outside.

There are several shopping streets in the area, such as Fahrenheitstraat and Regentesseplein. Plenty of choice of cozy restaurants, trendy bars, cozy boutiques and charming delicatessen shops! Various sports facilities, schools and public transport (tram 3, center) are within walking distance, which is very convenient!

Layout:

Open ‘Hague’ porch with wide stairs to the first floor. Entrance apartment, hall with meter cupboard and internal stairs to the top floor with skylight. Spacious bright landing with storage cupboard with washing machine connection. Access to toilet, living-dining room, modern bathroom (which has a shower, washbasin and mirror). Access to the L-shaped living/dining room with lots of daylight thanks to the authentic bay window. Access to the bedroom (3.40 x 3.62) via the living room. The kitchen is located on the right side of the apartment and is equipped with a connection for a dishwasher, oven, 4-burner gas stove, fridge-freezer combination. Spacious second bedroom located at the rear with access to the balcony. Finally, the entire apartment has a laminate floor.

In short, a wonderful apartment to move into immediately!

Particularities:

Located on private land
Living area approx. 85m2
Year of construction 1913
Fully equipped with double glazing in plastic and wooden frames
Wooden frames and bay window recently painted
Roof renewed and insulated in 2014
Central heating combination boiler HR 2010
Active VvE, 1/3rd share contribution € 90 p.m.
New MJOP drawn up in 2024
Perfect location relative to public transport, shops, beach and schools
Delivery can be done quickly
Given the year of construction of the house, the age and materials clause will be included in the purchase deed.

This information has been compiled by us with due care. However, no liability is accepted on our part for any incompleteness, inaccuracy or otherwise, or the consequences thereof. All specified sizes and surfaces are indicative. All this is subject to changes and/or possible printing errors.

Kenmerken

Overdracht

Vraagprijs

€ 335.000

Aangeboden sinds

25-03-2024

Status

Verkocht

Aanvaarding

Direct

Bijdrage VvE

90.00

Bouw

Soort

Appartement, Bovenwoning, Appartement

Soort bouw

Bestaande bouw

Bouwjaar

1913

Oppervlakte & inhoud

Wonen

85 m²

Inhoud

311 m²

Indeling

Aantal kamers

3

Aantal badkamers

1

Badkamervoorzieningen

Inloopdouche, wastafelmeubel

Aantal woonlagen

1

Voorzieningen

Tv kabel, internet

Energie

Energielabel

D

Buitenruimte

Ligging

Aan rustige weg, in woonwijk, bij ov voorziening